Correo electrónico: gerencia@arquestlr.com
355
¡Proyectos diseñados y construidos con nuestros clientes!
PROYECTO CONCLUIDO

CENTRO DE DISTRIBUCIÓN NESTLÉ - DIUNSA

San Pedro Sula

Metros de Construcción: 17,234.06 m2
Sistema Constructivo Implementado: Estructura metálica con conexiones empernadas.
Sistema de Cimentación:
Cimentación superficial con mejoramiento del suelo con zapatas aisladas y vigas de arriestro.

PROYECTO CONCLUIDO

CENTRO COMERCIAL MEGAMALL

San Pedro Sula

Metros de Construcción: 69,419.65 m2
Sistema Constructivo Implementado: Estructura metálica con conexiones empernadas.
Sistema de Cimentación:
Cimentación superficial con mejoramiento del suelo con columnas de grava.

PROYECTO CONCLUIDO

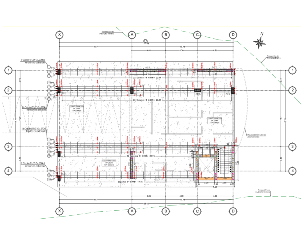
TORRES PANORAMA LIFE III

San Pedro Sula

Metros de Construcción: 37,450.00 m2 
Sistema Constructivo Implementado: Sistema Dual Postensado - Muros de Cortante - Columnas 
Sistema de Cimentación: Losa de Cimentación Rigida con Mejoramiento de Suelo.

 

PROYECTO CONCLUIDO

FUNDACIÓN HERMANDAD DE HONDURAS

Santa Bárbara - Copán - Ocotepeque

Metros de Construcción: 7,850.50 m2
Sistema Constructivo Implementado: Sistema Mixto Estructura Metálica - Concreto Reforzado
Sistema de Cimentación: Zapatas Aisladas - Vigas Tensoras

PROYECTO CONCLUIDO

PLAZA COMERCIAL LA GUARDIA

San Pedro Sula

Metros de Construcción: 2,657.30 m2
Sistema Constructivo Implementado: Sistema Mixto Estructura Metálica - Concreto Reforzado
Sistema de Cimentación: Zapatas Aisladas - Vigas Tensoras

PROYECTO CONCLUIDO

TOWN CENTER

San Pedro Sula

Metros de construcción: 29,571m2
Sistema constructivo implementado: Estructura Metálica
Sistema de cimentación: Zapatas Aisladas

PROYECTO EN PROCESO DE CONSTRUCCIÓN

TORRE DOMUS RESIDENCES

San Pedro Sula

Metros de Construcción: 18,683.67 m2
Sistema Constructivo Implementado: Sistema Dual postensado - Muros de cortante - Columnas
Sistema de Cimentación: Losa de Cimentación Rígida

PROYECTO EN PROCESO DE CONSTRUCCIÓN

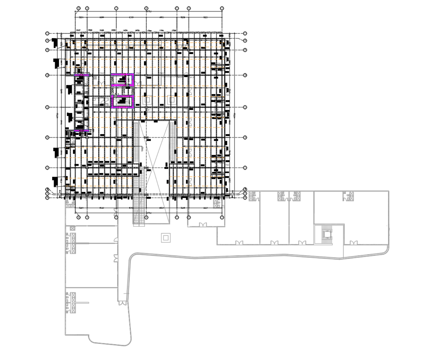
TORRES UNNA TOWER - VILLAS DEL SOL

San Pedro Sula

Metros de Construcción: 37,679 m2 (Estacionamientos, amenidades y apartamentos)
Sistema Constructivo Implementado: Sistema dual columnas y muros de cortante con losas postensadas
Sistema de Cimentación: Placa de cimentación de espesor variable con pilotes de fricción y de punta

PROYECTO EN PROCESO DE CONSTRUCCIÓN

TORRES MERENDON HILLS RESIDENCES

San Pedro Sula

Metros de Construcción: 8,500 m2 (Estacionamientos, amenidades y apartamentos)
Sistema Constructivo Implementado: Sistema dual columnas y muros de cortante con losas postensadas
Sistema de Cimentación: Placa de cimentación de espesor variable con pilotes de fricción y de punta de 10 mts de profundidad

PROYECTO EN PROCESO DE CONSTRUCCIÓN

TORRE PRÓCERES 121

San Pedro Sula

Metros de Construcción: 28,830.90 m2 (Estacionamientos, amenidades, apartamentos y gimnasio)
Sistema Constructivo Implementado: Sistema dual columnas y muros de cortante con losas postensadas
Sistema de Cimentación: Placa de cimentación de espesor variable con pilotes de fricción y de punta de 10 mts de profundidad

PROYECTO EN PROCESO DE CONSTRUCCIÓN

RÍO CITY CENTER

San Pedro Sula

Metros de Construcción: 32,099.38 m2 
Sistema Constructivo Implementado:
Área Comercial: Sistema de estructura metálica de conexiones empernadas
Apartamentos: sistema dual columnas y muros de cortante con losas postensadas
Sistema de Cimentación: Placa de cimentación de espesor variable con mejoramiento de suelo

PROYECTO EN PROCESO DE CONSTRUCCIÓN

TORRE DE OFICINAS PREMIER

San Pedro Sula

Metros de Construcción: 7,807.12 m2 (Oficinas)
Sistema Constructivo Implementado: Sistema dual columnas y muros de cortante con losas postensadas
Sistema de Cimentación: Placa de cimentación de espesor variable 

PROYECTO EN PROCESO DE DISEÑO

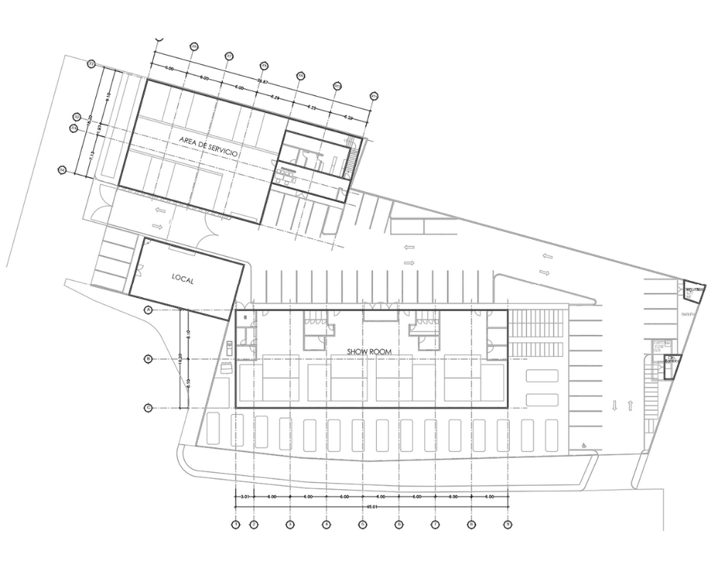
PREMIER WAREHOUSE COMPLEX

San Pedro Sula

Metros de Construcción: 79,803.88 m2 (Complejo de Ofibodegas de 300 m2 a 700 m2)
Sistema Constructivo Implementado: Sistema de estructura metálica con conexiones empernadas
Sistema de Cimentación: Zapatas aisladas y zapatas combinadas

PROYECTO EN PROCESO DE CONSTRUCCIÓN

TORRE VISTA 526 - COLONIA DUBÓN

San Pedro Sula

Metros de Construcción: 11,500 m2 (Estacionamientos, amenidades y apartamentos)
Sistema Constructivo Implementado: Pilotes con muros anclados, sistema dual columnas y muros de cortante con losas postensadas
Sistema de Cimentación: Placa de cimentación de espesor variable 

PROYECTO EN PROCESO DE CONSTRUCCIÓN

CENTRO DE DISTRIBUCIÓN AIRE FRÍO

San Pedro Sula

Metros de Construcción: 12,686.49 m2
Sistema Constructivo Implementado: Estructuras metálicas con conexiones soldadas.
Sistema de Cimentación: Superficial con zapatas aisladas y mejoramiento del suelo.

PROYECTO EN PROCESO DE CONSTRUCCIÓN

SUPER REPUESTOS

San Pedro Sula

Metros de Construcción: 26,379.01 m2
Sistema Constructivo Implementado: Estructuras metálicas con conexiones soldadas.
Sistema de Cimentación: Superficial con zapatas aisladas.

PROYECTO EN PROCESO DE CONSTRUCCIÓN

CONTINENTAL MOTORS

San Pedro Sula

Metros de Construcción:  3,655.70 m2
Sistema Constructivo Implementado: Estructuras metálicas con conexiones soldadas.
Sistema de Cimentación: Superficial con zapatas aisladas.

PROYECTO EN PROCESO DE CONSTRUCCIÓN

LINDARES

San Pedro Sula

Metros de Construcción: 55,700 m2 (Sótanos, área comercial, área de eventos, oficinas y helipuerto)
Sistema Constructivo Implementado: Estructura metálica con conexiones empernadas y arrioestramientos sísmicos.
Sistema de Cimentación: Muros anclados con pilotes y placa de cimentación de espesor variable.

PROYECTO CONCLUIDO

BODEGA DURMAN

San Pedro Sula

Metros de Construcción: 1,776.59 m2
Sistema Constructivo Implementado: Estructura metálica con conexiones soldadas.
Sistema de Cimentación: Estructura de zapatas aisladas.

PROYECTO CONCLUIDO

BODEGAS INTUR

San Pedro Sula

Proyecto: Ampliación de cuartos fríos.
Metros de Construcción: 3,181.80 m2
Sistema Constructivo Implementado: Estructura metálica con conexiones soldadas.
Sistema de Cimentación: Estructura de zapatas aisladas.

PROYECTO EN PROCESO DE CONSTRUCCIÓN

TORRE ICON - LOMAS DEL GUIJARRO

Tegucigalpa

Metros de Construcción: 7,609.44 m2
Sistema Constructivo Implementado: Sistema de marcos de vigas y losas de concreto armado.
Sistema de Cimentación: estructura mixta de losa de cimentación, zapatas aisladas y pilotes.

PROYECTO EN PROCESO DE CONSTRUCCIÓN

TORRES URBANIK - SAN IGNACIO

TEGUCIGALPA

Metros de Construcción: 76,108.06 m2
Sistema Constructivo Implementado: Sistema de losas postensadas.
Sistema de Cimentación: estructura mixta de losa de cimentación y zapatas aisladas.

PROYECTO EN PROCESO DE CONSTRUCCIÓN

TORRE JUAN LINDO

San Pedro Sula

Metros de Construcción: 3,185.5537 m2
Sistema Constructivo Implementado: Sistema de losas postensadas.
Sistema de Cimentación: Losa de Cimentación.

PROYECTO EN PROCESO DE CONSTRUCCIÓN

CENTRO DE DISTRIBUCIÓN FARINTER - LA GRANJA

Tegucigalpa

Metros de Construcción: 12,686.49 m2
Sistema Constructivo Implementado: Estructuras metálicas con conexiones soldadas.
Sistema de Cimentación: Superficial con zapatas aisladas y mejoramiento del suelo.

Sidebar